免费热线:400-965-6255
家庭影院案例:广州花都九龙湖别墅 175寸7.2.4全景声家庭影院 玛田4.1专业卡拉OK
时间:2025-12-11

1.基本情况简介

位置:广东广州花都九龙湖高端别墅区

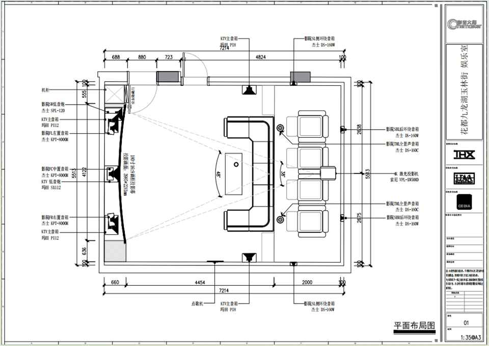
影音房信息:宽5.51米,长7.21米,别墅地下室独立影音房

资金投入:35万


九龙湖度假区坐落于广州市花都区花东镇,为国家AAAA级旅游景区,其占地25000亩。

度假区以自然山水为广阔载体、以家庭度假为主导功能,集自然景观、户外运动、生态休闲、养生体验、时尚娱乐、精品演艺为一体,秉承“静康养、轻运动、精致度假”的理念,致力打造“度假圣地,徒步天堂”。



平面布局图


你家的地下室,还在当 “杂物仓库”?

“5.51 米宽、7.21 米长的地下室,说大不大说小不小,堆杂物可惜,做储藏室浪费,想改造成实用空间却毫无头绪?”—— 这是 90% 别墅业主面对地下室时的共同困惑。阴暗潮湿、空间形状尴尬、声学处理难,让无数人对地下室改造望而却步,最终只能任由这块 “黄金区域” 被闲置,成为家居空间的 “隐形遗憾”。


但今天,我们要打破这种困境:5.51×7.21m,不是地下室改造的 “尴尬尺寸”,而是家庭影院的 “黄金比例” !接下来这则真实案例,将带你见证一间 “被嫌弃” 的地下室,如何逆袭成全家人抢着用的 “影音圣地”,更直击别墅业主改造痛点,告诉你专业家庭影院为何能让电影院彻底沦为 “备选”。


定制175寸弧形投影幕大屏,轻松get影院级体感


痛点直击:空间利用率低?5.51×7.21m 实现 “视听 + 社交” 双重功能


“这么窄的宽度,摆完沙发就没过道?”“长度够但宽度受限,观影距离会不会太近?”—— 这是业主王先生最初的顾虑。他的别墅地下室恰好是 5.51m(宽)×7.21m(长)的格局,此前一直用来堆放健身器材和闲置家具,灰尘堆积不说,每次取物都要翻箱倒柜,完全违背了别墅生活的精致感。


而我们的设计核心,就是让每一寸空间都发挥价值。结合 THX 家庭影院标准,5.51m 的宽度恰好适配 “7.2.4 声道全景声” 布局:前置主音箱、中置音箱摆放,左右环绕音箱、后环绕与天空声道音箱精准嵌入吊顶,既不占用地面空间,又能形成 360° 无死角的声场包裹。


长度方向上,7.21m 被科学划分为 “观影区 + 休闲区”:前排摆放定制款沙发,椅背可调节观影角度;后排预留 2m长度,搭配单人太空舱沙发,朋友聚会时可小酌聊天,不影响前排观影体验。改造后,整个空间既没有拥挤感,又实现了 “观影、社交、放松” 多重需求,让地下室从 “闲置空间” 变成了家庭生活的 “核心场景”。


设计两排沙发,朋友观影聚会不再拥挤


痛点直击:地下室潮湿阴暗?专业处理打造 “恒温恒湿影音舱”


“地下室潮得能拧出水,音响设备会不会受潮坏了?”“没有窗户,会不会又闷又暗?”—— 这是别墅业主改造地下室的头号顾虑。王先生的地下室最初湿度高达 75%,墙面返潮、地面起雾,根本无法长时间停留。


针对这一痛点,我们采用了专业的防潮解决方案:墙面做基层防潮处理后,再安装龙骨隔音棉和石膏板,外层涂刷防潮乳胶漆;顶部同理,配合新风或空调,将室内湿度稳定在刚好符合影音设备的最佳工作环境,也让人体感觉舒适。


采光方面,虽然没有自然窗户,但我们设计了 “间接照明 + 氛围灯光” 系统:吊顶及墙面嵌入 LED 线性灯,光线柔和不刺眼,并提供照明;天花再嵌入LED筒灯增加照明。改造后,地下室再也不是 “阴暗潮湿的角落”,而是温暖舒适、氛围感拉满的 “专属影音舱”,即使全天待在里面也不会觉得闷。



2.投影系统配置(4K)

日本 SONY/索尼 VPL-XW5000 4K激光投影机 1台

威动D5 4K影库播放器 1台

圣卡德 SEKODO  175英寸弧形画框透声幕 1副



索尼 VPL-XW5000 4K激光投影机吊装在后墙天花


痛点直击:视听效果差强人意?专业配置还原 “影院级沉浸感”


“自己买个投影仪和音响,是不是也能做家庭影院?”—— 很多业主会有这样的误区,但实际体验后才发现:画面模糊、声音发闷、环绕声没有立体感,最终沦为 “大型电视 + 外放音响” 的尴尬组合。


而专业家庭影院的核心,在于 “音画协同 + 声学优化”。以王先生的案例为例,我们在配置上拒绝 “堆砌参数”,而是根据 5.51×7.21m 的空间尺寸精准匹配:画面部分:放弃普通投影仪,选择 4K 激光电视,亮度 2200 流明,搭配 175 英寸幕布,色彩还原度高达 95%,比电影院的普通幕布更细腻 —— 播放《阿凡达 2》时,潘多拉星球的蓝色海洋、荧光植物仿佛触手可及,动态画面无拖影,细节清晰到能看清角色脸上的汗珠。



3.音响系统配置(7.2.4杜比全景声)

美国 Klipsch/杰士 KPT-8000-M主箱 2只

美国 Klipsch/杰士 KPT-8000-M 中置音箱 1只

美国 Klipsch/杰士 DS-160W 侧环绕音箱 2只

美国 Klipsch/杰士 DS-160W 后环绕音箱 2只

美国 Klipsch/杰士 DS-160C 顶环绕音箱 4只

美国 Klipsch/杰士 SPL-150 低音炮 2只

美国 Integra DRX8.4 合并功放 1台



声音部分:全套采用国际知名影音品牌设备杰士Klipsch,7.2.4 声道全景声系统搭配低音炮,实现 “天空 + 地面” 的全方位声场覆盖。中置音箱专门优化人声表现,追剧时演员的台词清晰通透,即使是低声对白也能听得一清二楚;环绕声和天空声道精准定位,观看《速度与激情 10》时,汽车引擎的轰鸣声从前方传来,刹车时的摩擦声从侧后方掠过,雨滴声仿佛从头顶落下,真正实现 “身临其境” 的沉浸感。


7.2.4 声道全景声系统


更重要的是,我们对空间进行了专业声学处理:墙面和吊顶嵌入吸音棉,减少声波反射造成的杂音;沙发选择布艺与真皮结合的材质,既提升舒适度,又能辅助声学优化。改造后,王先生反馈:“第一次在家看电影时,完全被震撼到了,声音比电影院更清晰,画面更细腻,而且没有旁人打扰,想暂停就暂停,想重复看哪个片段就重复,这种体验是电影院根本给不了的。”



4.卡拉OK系统配置:

英国 玛田/Martin PI12 12寸音箱 1对

英国 玛田/Martin P8I 8寸音箱 1对

英国 玛田/Martin SX112 低音炮 1只

中国 天师/Trance  5208纯后级功放 1台

中国 天师/Trance  5212 纯后级功放 2台

中国 Vinal/韵乐 X5效果器 1台

台湾/BBS CT-6 专业级无线话筒 1套

中国 视易/Evideo N68P 点歌机 1套



痛点直击 :家庭娱乐单一?4.2 声道卡拉 OK 系统解锁 “全能派对空间”


“观影之外还能做点什么?朋友聚会总不能一直坐着看电影吧?”—— 这是很多家庭影院用户的后续遗憾,单一功能让空间利用率大打折扣。王先生也提出了需求:希望地下室能兼顾娱乐社交,让聚会更有氛围。


卡拉OK辅音箱采用天花吊装模式


为此,我们特别融入 4.2 声道专业卡拉 OK 系统,与影院系统无缝兼容,不额外占用空间却能翻倍娱乐价值。系统采用双主音箱 + 双辅音箱+低音炮的配置,主音箱精准还原人声中频,让歌声通透嘹亮,即使是五音不全的朋友也能唱出 “歌手感”;辅音箱提升声场包围感;低音炮强化低频表现,播放流行金曲时节奏感十足,瞬间点燃派对氛围。搭配专业数字效果器,支持混响、延时等多种音效调节,可根据演唱风格切换 “演唱会”“KTV”“录音棚” 模式,满足不同需求。


卡拉OK点歌屏壁挂嵌入到墙内,嵌入式的设备需提前预留好开孔尺寸


更贴心的是,系统与影院屏幕联动:点歌时屏幕自动切换至高清点歌界面,内置百万曲库且支持在线更新,从经典老歌到流行新歌全覆盖;瞬间变身 “私人派对现场”。王先生笑着说:“自从有了卡拉 OK 系统,家里聚会再也不用去外面 KTV 了,在家既能唱歌又能看电影,长辈唱戏曲、孩子唱儿歌、朋友合唱金曲,每个人都能找到乐趣,地下室现在成了聚会的‘必选地’。”



痛点直击 :改造复杂、性价比低?一站式服务让 “理想落地”


“改造地下室会不会很麻烦?要找装修队、买设备、调试,太费时间了!”“会不会花了大价钱,最后效果却不满意?”—— 这是很多业主迟迟不敢动手的原因。


针对这一痛点,我们提供 “从设计到落地” 的一站式服务:前期免费上门测量,根据空间尺寸、业主预算和使用需求,出具专属设计方案(包括 3D 效果图、设备清单、报价明细);中期由专业施工团队负责安装调试,所有设备均提供正品保障和售后维修服务;后期免费上门进行声学校准和使用指导,确保业主能轻松操作。


王先生的案例从设计到完工仅用了50天左右,总预算控制在 35 万元(包含设计、施工、设备,不含家具),比同等配置的商业影院包厢年卡费用还低,却能享受终身专属的观影体验。用他的话说:“以前带家人去电影院,来回路上要 1 小时,排队买票、找座位、忍受旁人喧哗,一场电影下来又累又不尽兴。现在在家,随时能开启观影模式,孩子想看动画、老人想看戏曲、我想看大片,都能满足,这才是别墅生活该有的品质。”



结语:5.51×7.21m,不只是一个尺寸,更是一种生活方式


很多人觉得别墅地下室改造是 “锦上添花”,但实际上,它是提升家庭生活幸福感的 “关键一步”。5.51m 的宽度,刚好能承载全景声的环绕包裹;7.21m 的长度,恰好能划分出观影与休闲的双重空间。在这里,你可以陪孩子重温经典动画,感受亲子时光的温暖;可以和爱人看一场浪漫电影,重拾恋爱时的甜蜜;可以约朋友聚会小酌,在光影与音乐中放松身心;也可以一个人沉浸在喜欢的影片里,暂时逃离生活的喧嚣。


如果你家也有一间 5.51×7.21m 的别墅地下室,如果你也在为空间闲置而遗憾,如果你也想拥有一间专属家庭影院,不妨联系我们 —— 专业的设计团队、优质的设备配置、贴心的一站式服务,让你的地下室不再 “浪费”,让家庭生活更有质感。别让闲置的地下室,成为你家居生活的 “遗憾”,赶紧行动起来,打造属于你的 “影音圣地” 吧!