1.基本情况简介
位置:广东广州万科红郡高端别墅区
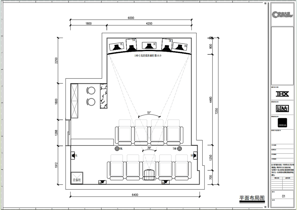
影音房信息:宽6米,长7.25米,别墅地下室独立影音房
资金投入:45万
在家庭别墅的地下室中,打造一个独立影音室已成为现代生活品质的象征。本方案聚焦于一个集休闲娱乐于一体的多功能空间,其设计理念融合了先进影音技术与自然美学,旨在营造一个既适合家庭聚会又满足个人沉浸体验的私密场所。
而影音室的核心,无疑是绝佳的视听设备。为了打造沉浸式的观影体验,本案例采用了9.2.4全景声系统。3个主音箱、6个环绕音箱、2个低音和4个天空全景声相互配合,能够精准地定位每一个声音的来源,营造出全方位包围的音效空间。当影片中战机呼啸而过时,你能清晰地感受到声音从头顶上方掠过;当海浪拍打着沙滩时,那澎湃的音效仿佛将你带到了海边,让你身临其境般感受大自然的魅力。
平面布局图
而前方大屏幕则是搭配180寸的巨型投影幕,它如同一块巨大的魔法画布,将影片中的精彩画面栩栩如生地呈现在眼前。投影幕采用了高清材质,画面更加清晰、亮丽。无论是观看动作大片时的激烈打斗场面,还是欣赏文艺片中的细腻情感表达,都能让你感受到前所未有的视觉震撼。
由于房间形状不规则,给影音室的设计带来了不小的挑战,但设计师凭借着专业与巧思,精心雕琢,让每一处角落都焕发出独特魅力。一进门,目光便会被角落处精心设计的吧台洗手区所吸引。原本这个不规则的角落,可能会成为空间利用的难题,但在设计师笔下,却摇身一变成为实用又美观的功能区。吧台采用了与整体原木风相呼应的木质材质,下方设置了收纳柜,可放置一些常用的物品。在这里,观影前可以方便地洗手清洁,观影间隙也能在这里小坐片刻,品尝饮品,为休闲时光增添一份惬意。
前方左面设计洗手台,右方为180寸弧形投影幕
2.投影系统配置(4K)
日本 JVC 4K激光投影机 1台
威动D8 4K蓝光影库播放器 1台
圣卡德 SEKODO 180英寸弧形画框透声幕 1副
在这个家庭影音房中,投影机被巧妙地吊装在后墙上,为观影者带来震撼的视觉效果。投影机的选择也非常讲究,它不仅能够投射出清晰明亮的画面,还能根据观影者的需求调整画面大小和亮度。
后墙吊装的设计不仅节省了空间,还能让观影者更加专注于屏幕上的画面。同时,投影机的安装位置也经过精心计算,确保画面能够完整地呈现在屏幕上,不会出现任何遮挡或变形的情况。
投影机吊装在后墙天花处,设备柜嵌入到右侧墙内
3.音响系统配置(9.2.4杜比全景声)
美国 Klipsch/杰士 THX-6000-LCR 主箱 2只
美国 Klipsch/杰士 THX-6000-LCR 中置音箱 1只
美国 Klipsch/杰士THX-8000-S 侧环绕音箱 4只
美国 Klipsch/杰士THX-8000-S 后环绕音箱 2只
美国 Klipsch/杰士 CS-16C II 天空全景声音箱 4只
美国 Klipsch/杰士 THX-1200-SW 低音炮 2只
美国 Klipsch/杰士 KA-1000THX 低音炮功放 1台
英国 NAD T778 旗舰版合并前级功放 1台
美国 Klipsch/杰士 KDA-500纯后级功放 1台
影音室采用简约原木风的装修格调,营造出休闲又温馨的氛围。墙面与天花板大面积运用原木材质,影音室后方,精心搭配的软包,质地柔软,颜色与原木相得益彰,不仅为空间增添了柔和质感,更在声学上发挥关键作用。软包能有效吸收多余的声音,减少回声和混响,让音效更加纯净清晰,仿佛每一个音符都能精准地钻进耳朵。
影音室前方,木质扩散板有序分布。其独特的造型和结构,可将声音均匀地扩散到空间的各个角落,避免声音出现聚焦或死角。与后方的软包相互配合,一吸一散,完美平衡了影音室内的声学环境。在这里观影或听音乐,就如同置身于专业的音乐厅,能尽情享受高品质的视听盛宴。
4.卡拉OK系统配置:
英国 玛田/Martin PI 12寸音箱 2只
英国 玛田/Martin PI 8寸音箱 2只
英国 玛田/Martin SX112 12寸低音炮 1只
中国 天师/Trance 4204 纯后级功放 2台
中国 天师/Trance 5208 纯后级功放 1台
中国 Vinal/韵乐 X5效果器 1台
台湾/BBS GT-6 专业级无线话筒 1套
中国 视易/Evideo N68P 点歌机 1套
在现代娱乐生活中,卡拉OK作为一种集歌唱、娱乐与社交于一体的活动形式,深受大众的喜爱。为了打造一个专业级且富有沉浸感的卡拉OK环境,一套高质量的音响系统无疑是不可或缺的。
点歌屏作为卡拉OK系统的“指挥官”,其位置的选择同样至关重要。将其壁挂于墙上,不仅节省了宝贵的地面空间,还能让整个娱乐区域看起来更加整洁有序,提升整体美观度。同时,壁挂设计便于顾客在任何位置都能轻松操作,无论是选择歌曲、调节音量还是查看歌词,一切尽在掌握之中。在安装时,建议根据墙面材质选择合适的安装支架,并确保屏幕高度适中,既方便操作又不影响视线。
5.其他设备:
MPS HD-666 4K发烧光纤HDMI线材
MPS HD-280 4K发烧HDMI线材
MPS SGP-127 纯铜音箱线材
MPS SGP-117 纯铜音箱线材
高档铝合金豪华吊架
ABL 电源时序器 带滤波功能
定制设备柜
现场安装调试花絮
